Walford Constructora San Bernardo Partido de La Costa

Bruno IV - Frente al mar

Ficha

Referencia:
4
Precio:
U$S 71.500
Estado:
En pozo
Localidad:
San Bernardo
Pisos:
6
Superficie:
67 m2
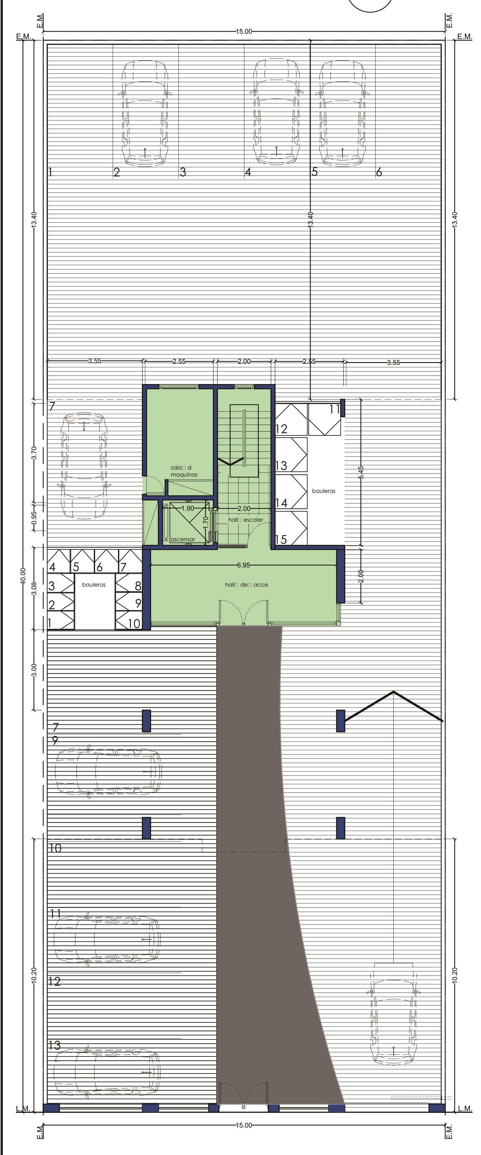
Estacionamiento:
Espacio fijo descubierto
Entrega:
Diciembre 2024

Descripción

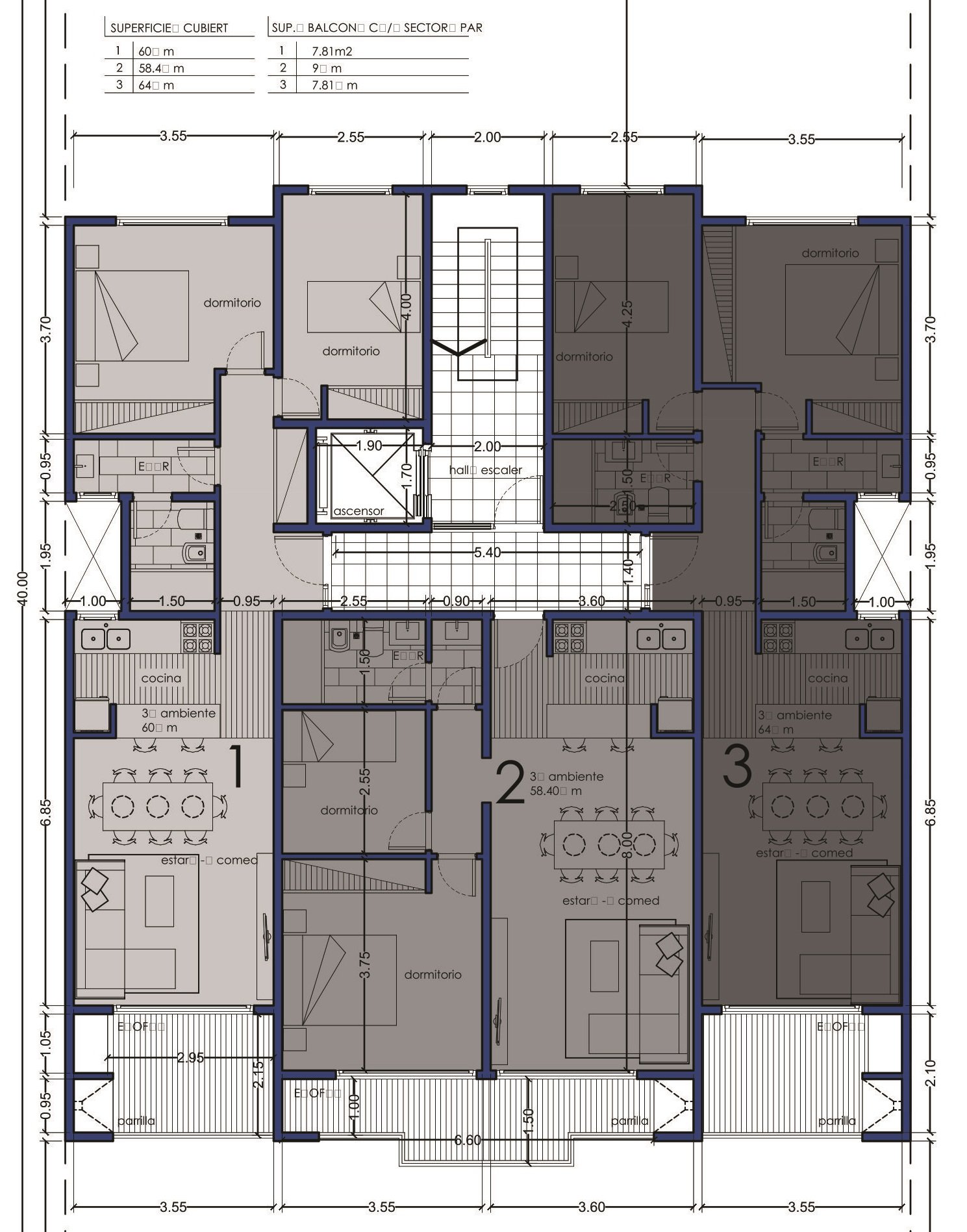
El valor publicado corresponde al valor total por una unidad de 2 ambientes y medio en primer piso con Estacionamiento descubierto y balcón al frente con parrilla.
*** ENTREGA DICIEMBRE 2024 ***

Exclusivos departamentos –
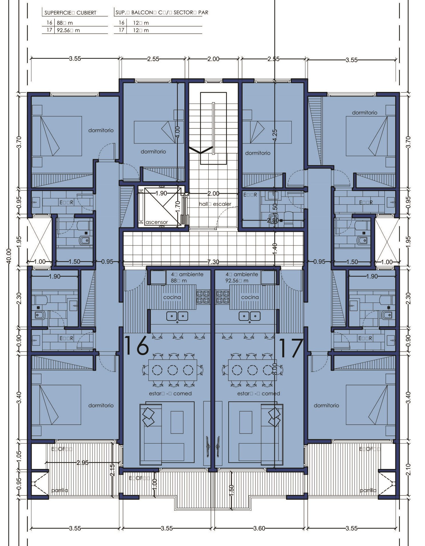
Amplios departamentos de 2, 3 y 4 ambientes, con cocheras opcionales.
PRIVILEGIADA UBICACIÓN – TODAS LAS UNIDADES FRENTE AL MAR
Sobre Av. Costanera 2332 entre Querini y Falkner a 100 de la peatonal.-


Materiales

TODAS LAS UNIDADES DAN AL FRENTE - CUENTAN CON BALCÓN CON PARRILLA INDIVIDUAL -ESPACIO DE ESTACIONAMIENTO DESCUBIERTO FIJO.
UNIDADES DESDE EL 2DO PISO CON LA MEJOR VISTA AL MAR.-

-Servicios-
Todos los servicios disponibles en la zona, Agua de red, Luz Eléctrica, Cloacas e instalación para TV.

-Detalles Constructivos-
Sistema constructivo por medio de de vigas de fundación, columnas y vigas perimetrales todo en Hormigón Armado. Mampostería de ladrillos huecos .paredes interiores con revestimiento plástico de primera calidad y fina terminación exteriores con aislamiento hidrófugo y revestimiento plástico de alta resistencia.

- Revestimientos –
Paredes de baño y cocina revestido con material cerámico de primera calidad.
Pisos de baño cocina dormitorios, palier, hall de entrada, revestidos, con material cerámico de primera calidad.

- Equipamiento de cocina -
Cocina y termo tanque eléctrico de recuperación rápida.
Mesada de granito, bacha de acero inoxidable bajo mesada de MDF

- Grifería y accesorios de baño –
Cocina griferia mono comando. Baño griferia con cuadro de ducha y bidet con mezcladora línea FV o similar. Artefactos sanitarios blancos de loza Ferrum o similar.

- Carpintería –
Puerta de acceso a unidades y puertas interiores de madera esmaltada aberturas exteriores de aluminio línea Modena de Aluar o similar con vidrio Flot de 4 mm.

- Instalación sanitaria –
Alimentación de agua caliente y fría mediante cañerías de termo fusión Aquasistem o similar. Tuberías de desagües Awaduct o similar, todas las cañerías aprobadas y normalizadas por ABSA (red de agua). Obras sanitarias por Cesop.

- Instalación eléctrica-
Cada unidad estará equipada con un tablero con disyuntor y llaves térmicas individuales para cada circuito de alumbrado y toma corrientes. Todos los componentes de la instalación eléctrica se ajustaran a reglamentaciones vigentes y a normas IRAM.

-Ascensor –
Moderno ascensor de última generación con cabina de acero inoxidable.-

-REFERENCIAS -
San Juan 2875 (6 pisos con cocheras) - San Juan 3056 (6 pisos con cocheras) - J.V. González 123 (7 pisos) – San Juan esq. Mensajerías (PB y 2 pisos).- Bruno I (6 pisos con cocheras) - Bruno II (7 pisos con cocheras) - Bruno III (6 pisos con cocheras)

AVISO LEGAL: 1) Las descripciones arquitectónicas y funcionales, fotos, renders, memorias descriptivas, medidas del inmueble, precios, valores de expensas, impuestos y servicios y fechas de entrega de los emprendimientos son aproximados, meramente orientativos y no vinculantes. 2) Los datos fueron proporcionados por el propietario o por el desarrollador y pueden no estar actualizados a la hora de la visualización de este aviso por lo que pueden arrojar inexactitudes y discordancias respecto de los datos exactos, los cuales surgen de las facturas, títulos y planos legales del inmueble. 3) Recomendamos y sugerimos al usuario y/o al interesado realizar las verificaciones respectivas previamente a la realización de cualquier operación, requiriendo -a tal fin- por sí o a través de profesionales las copias necesarias de la documentación que estimen necesario conocer con exactitud.

Detalles

 2 Ambientes
 3 Ambientes
 Parrilla
 Balcon
 Estacionamiento
 Asfalto
 Cloacas

Ubicación

Comparte en tus redes sociales

Contacto